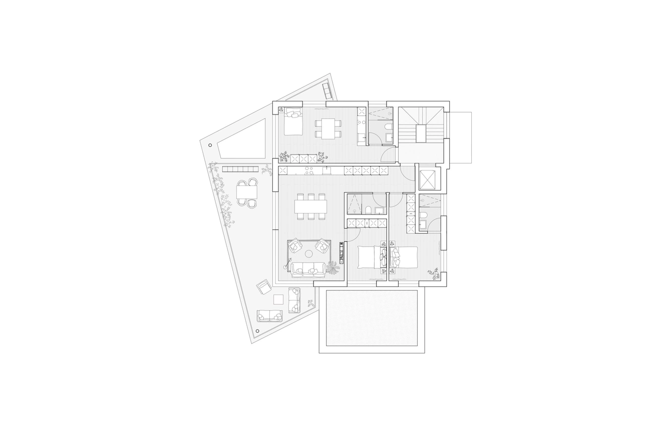
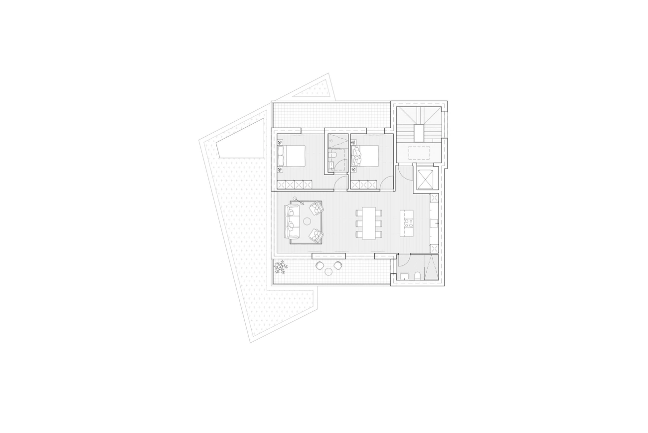
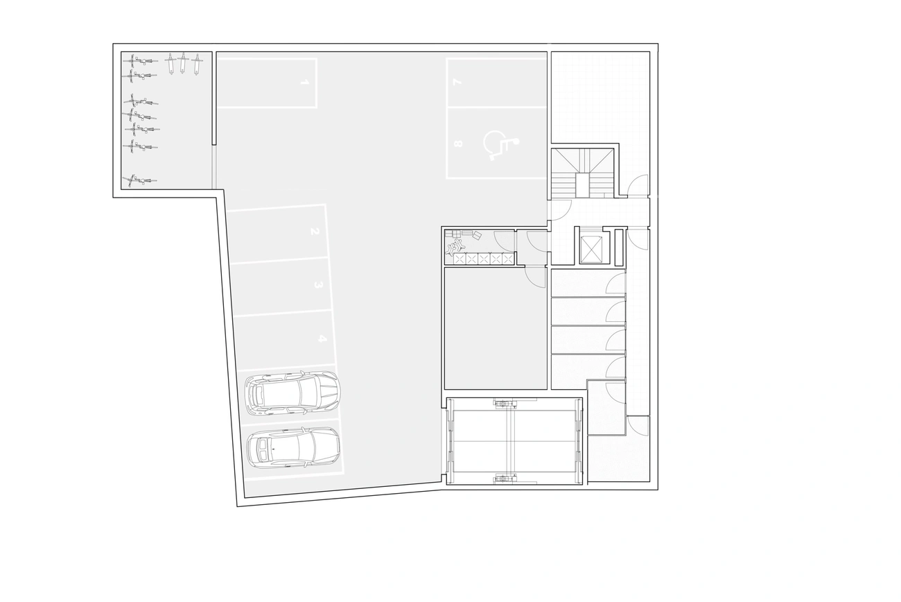
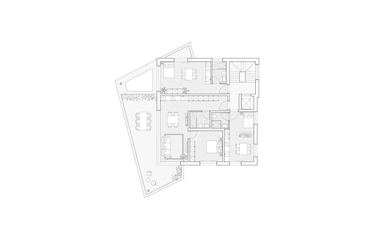
An der Wallisellerstrasse 144-146 entsteht ein neues Mehrfamilienhaus in Minergie Standard. Das Projekt umfasst Gewerbeflächen im Erdgeschoss und sieben Eigentumswohnungen in den übrigen Stockwerken.
Opfikon gehört zur Flughafenregion Zürich. Das Mehrfamilienhaus wird daher mit erhöhten Lärmschutzmassnahmen geplant.
An der Wallisellerstrasse 144-146 entsteht ein neues Mehrfamilienhaus in Minergie Standard. Das Projekt umfasst Gewerbeflächen im Erdgeschoss und sieben Eigentumswohnungen in den übrigen Stockwerken.
Opfikon gehört zur Flughafenregion Zürich. Das Mehrfamilienhaus wird daher mit erhöhten Lärmschutzmassnahmen geplant.
Deutsch
Deutsch
English
Français
Italiano